E滁州|bbs.0550.com

 找回密码
 注册
搜索
查看: 8651|回复: 5

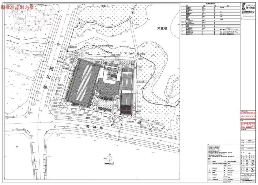
[滁州城事] 最新消息!滁州如意湖富茂大饭店项目调整规划方案批前公示

[复制链接]
发表于 2025-11-22 09:36 来自手机 | 显示全部楼层 |阅读模式 | 来自安徽

 

 

项目概况:该项目位于滁州市宝山路与淮河路交叉口的东北侧,建设单位为滁州富盛酒店管理有限公司。主要调整内容:

1、规划总平面图中对场地出入口、局部停车位布置等进行调整;

2、建筑平面图中对电动扶梯位置、疏散楼梯设置、局部功能布局等进行调整;

3、建筑立面图中对部分外墙装饰、客房楼屋顶构架高度等进行调整。

 

 

 

 

 

 

 

 

来源:滁州市自然资源和规划局

发表于 2025-11-22 19:34 来自手机 | 显示全部楼层 | IP未知
回复本楼 收起回复本楼
B Color Smilies
还可输入 个字符
发表于 2025-11-23 09:38 | 显示全部楼层 | 来自安徽
回复本楼 收起回复本楼
B Color Smilies
还可输入 个字符
发表于 2025-11-23 10:12 来自手机 | 显示全部楼层 | 来自安徽
回复本楼 收起回复本楼
B Color Smilies
还可输入 个字符
发表于 2025-11-23 20:08 来自手机 | 显示全部楼层 | 来自安徽
回复本楼 收起回复本楼
B Color Smilies
还可输入 个字符
发表于 2025-11-25 10:48 来自手机 | 显示全部楼层 | IP未知
回复本楼 收起回复本楼
B Color Smilies
还可输入 个字符
您需要登录后才可以回帖 登录 | 注册

本版积分规则

帮助|Archiver|手机版|E滁州 ( 增值电信业务经营许可证:皖B2-20110018 )

GMT+8, 2025-11-30 03:28

Powered by Discuz! X3.4

© 2001-2017 Comsenz Inc.

快速回复 返回顶部 返回列表